Oldal tetejére

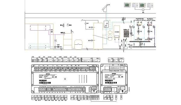
Siemens Albatros 2 alapú hőközponti szabályozás

Hőközpont Siemens Albatros 2 szabályzóval.
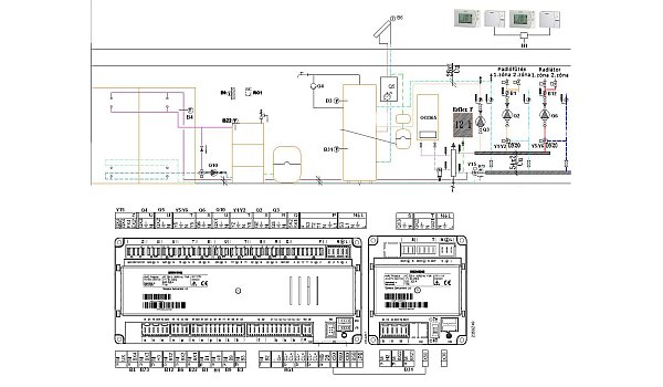
Hőközpont Siemens Albatros 2 szabályzóval.